A breathtaking space that inspires connection, creativity, and calm

Wow your team, your clients, and your guests. The Treehouse is our signature space where leafy greenery, natural light, and thoughtful design come together to create an unforgettable atmosphere.

A Centrepiece with Soul

Our Steinway concert grand piano isn't just here for show - it's an open invitation to play, pause, and think differently. It’s not about being a concert pianist; it’s about breaking the rhythm, loosening up, and letting creativity breathe.

Designed to Flex

Our open-plan layout transforms effortlessly to suit your event; whether you're setting up for a team workshop, hosting an intimate concert, or launching a brand in style.

Cosy corners, fairy lights, and space to think

Our breakout areas provide a relaxed retreat for casual chats, quiet moments, or creative sparks - made for those magic in-between moments when the best ideas often surface.

Highlights

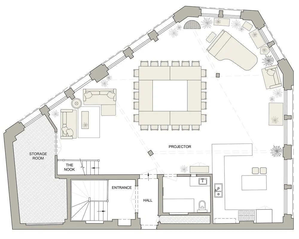
The Floor Plan

One beautiful venue… Two flexible spaces... Endless possibilities!

While the Treehouse is our main showstopper, adding The Loft unlocks a whole new level of flow and functionality. 

Whether you need:

  • extra breakout areas

  • a private cloakroom

  • a quiet space for calls

  • a space for catering preparation

Or, simply having both spaces gives your event room to breathe

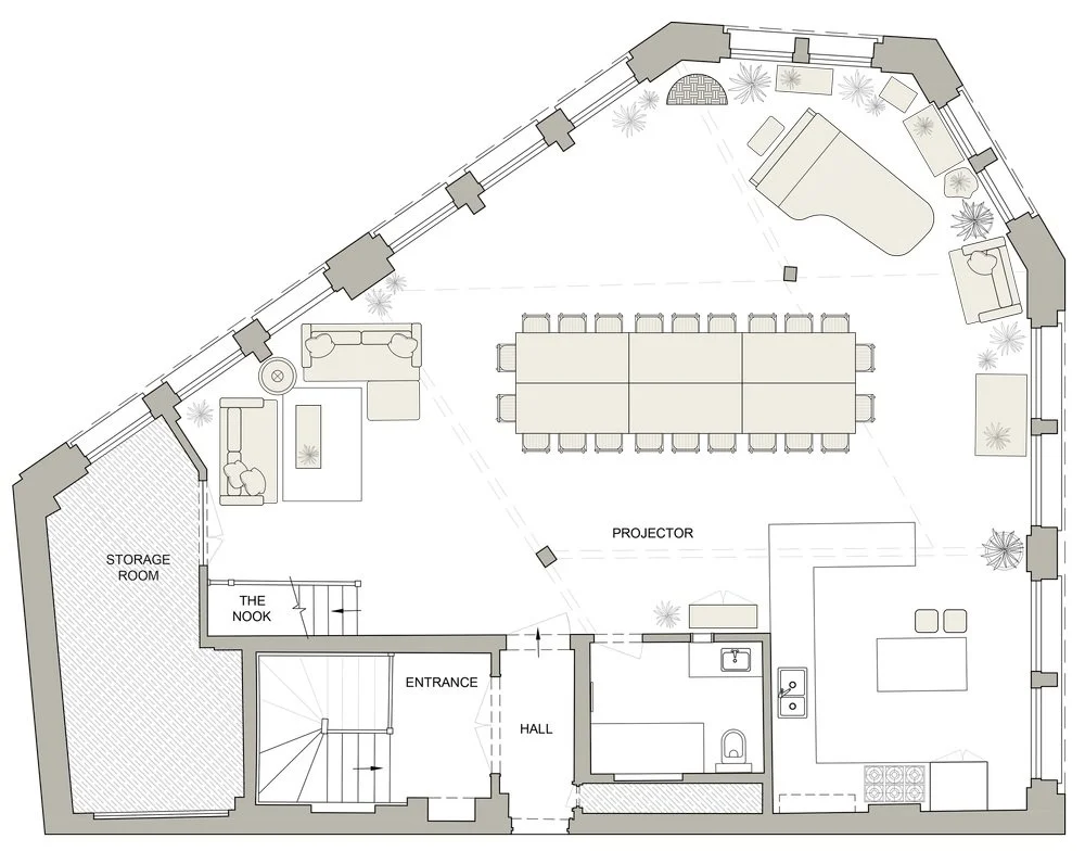
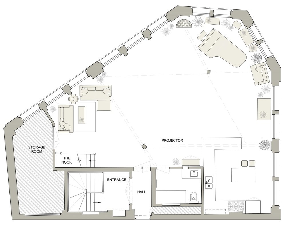
Popular Layouts

What’s Included?

We thoughtfully designed the space so you can feel at ease and not worry about the details 🙂

    • Whiteboards, easels, and markers

    • Up to 6 tables and 60 chairs

    • Multiple breakout areas

    • Superfast WiFi

    • 4K HD projector with a 3-metre screen

    • HDMI and wireless presenting options

    • Wireless presenter clickers

    • Studio-quality, wireless speakers

    • Jura bean-to-cup coffee machine

    • Grind coffee pod machine

    • Yorkshire Tea & herbal blends

    • Oat and dairy milk

    • Seasonal fresh fruit and complimentary biscuits

    • Dog treats and a bed for your furry plus-one 🐾

    • Flooded with natural daylight

    • Private bathroom

    • Fully equipped kitchen

    • Air conditioning and central heating for year-round comfort

Price Guide


Treehouse Only Hire

(Early start 8am-5pm / Late start 1pm-10pm) Up to 45

£2,000/day

Whole Venue Hire


(Treehouse + Loft) Up to 60

£2,600/day

For bookings of 45-60 attendees, whole venue hire will be required

Evening bookings: 6pm - 10pm available from £1,250

20% Discount for off-peak full days (Monday and Fridays)

Security deposit: £1,000 (returns processed on Fridays)



FAQs

  • The Treehouse can comfortably host up to 60 guests. However, for fire safety reasons, any booking with over 45 attendees will require full venue hire (Treehouse + Loft).

  • Everything you need for a smooth, productive day: super-fast WiFi, a 3m presentation screen, AV tech, whiteboards, flexible furniture, a fully equipped kitchen, plus tea, coffee, seasonal fruit and biscuits — all included.

  • Yes, the Treehouse is kept cool and comfortable year-round. We’ve got two industrial-sized air conditioning units in the main space, so even on the hottest summer days, you’ll stay perfectly chilled.

  • Yes, you’re welcome to bring your own caterers. If you'd like some local recommendations, we’re happy to help.

  • Yes, all Treehouse bookings are entirely private. If you’d like full venue exclusivity, we recommend hiring both spaces together.

  • Absolutely. Evening bookings run from 6pm–10pm and work beautifully for brand activations, creative showcases, or live performances.

  • Yes! You’re welcome to bring your own drinks, and we don’t charge corkage. Just a heads-up—we’re not a party venue, so we don’t host late-night receptions or rowdy celebrations. We like to keep things relaxed, creative, and a little bit magical.

    If your event is ticketed or involves the sale of alcohol, you’ll need to apply for a Temporary Event Notice (TEN) and have it approved in advance. Feel free to reach out to our team—we’re happy to advise you on the process and help you get everything sorted.

  • Absolutely. The layout is flexible and can be adapted to suit your day. Tables and chairs can be reconfigured, and some furniture can be cleared on request - just let us know in advance.

  • We’re based on the third floor of a characterful Shoreditch building, accessible by stairs only. If you have any questions about access, just reach out — we’re always happy to help.

  • Yes, we ask for a £1,000 refundable security deposit. This is returned the Friday after your booking, provided everything’s in order.

  • We don’t have on-site parking, but we can provide up to two parking permits for £5 each for Hackney Council’s ‘Residential Zone B.’

    The nearest loading bay is just under 100 metres away at 46 Great Eastern Street. For deliveries on Charlotte Road, please keep in mind that loading time is limited to 20 minutes, and access is restricted for non Ultra-Low Emission Vehicles during peak hours (Monday to Friday, 07:00-10:00 and 16:00-19:00).

  • Of course! We’re proudly dog-friendly. There’s a dog bed, treats, and lots of love waiting - just give us a heads-up beforehand.

We’d love to hear from you!

More questions? Talk to us, or come experience the magic of the space yourself!

Enquire Now
Download Venue Pack